[Vietnam News]

View - Nhà phố tại Bắc Ninh có mặt tiền "biết thở", lấy cảm hứng từ hang động | Báo Dân trí

2024-06-19 00:20:30

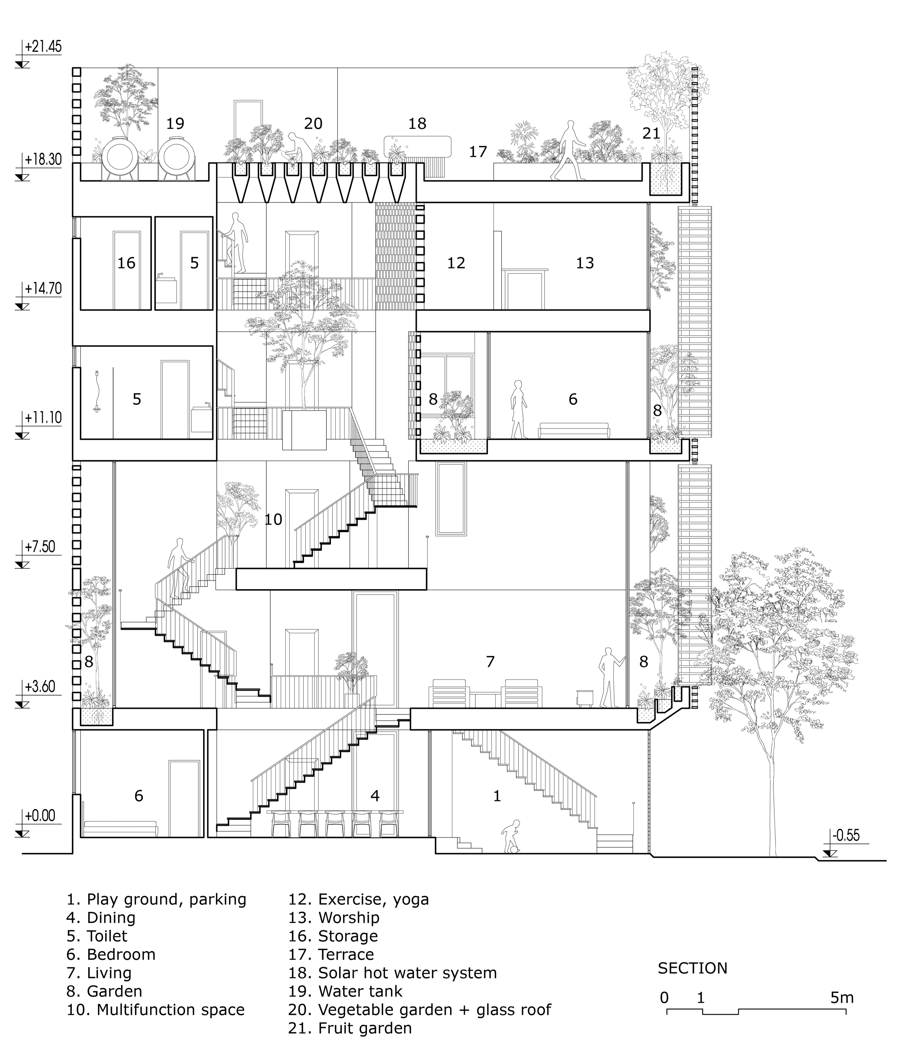
Nhà phố tại Bắc Ninh có mặt tiền "biết thở", lấy cảm hứng từ hang động | Báo Dân trí(Dân trí) - Thiết kế của ngôi nhà được lấy cảm hứng từ hiệu ứng ánh sáng và không gian của một hang động thiên nhiên.nhà phố,hang động,thiết kế

Tang Mộc